контактное лицо
Mavie Datz
Mavie Datz
Консультант по недвижимости Продажа недвижимости
+49 89 340 823-543
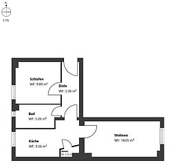
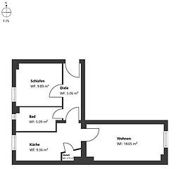
Количество комнат
2
Жилая площадь ок.
44,18 m²
Покупная цена
€ 399 000,-
Комиссия
2,975% с учетом НДС
Расположение
81369 München

Sendling: Высококачественная отремонтированная 2-комнатная квартира - свободна


Номер предложения :
70381
Тип объекта:
Плоский
Жилая площадь ок.:
44,18 m²
Год постройки:
1900
Коммунальные платежи:
158 €
Состояние жилья:
Модернизированный
Спальни:
1
Ванные комнаты:
1
Подвал:
Есть.
Встроенная кухня:
Есть.
Этаж:
Первый этаж
Напольное покрытие:
плитка, паркет

Маклерская комиссия

Комиссия покупателя: 2,975%, включая 19% НДС.

Топ-хайлайты


  • План этажа подходит для совместной квартиры
  • Привлекательный ремонт
  • Большая встроенная кухня

Описание


Эта привлекательная 2-комнатная квартира на первом этаже расположена в ухоженном старом здании 1900 года, которое впечатляет своей планировкой, подходящей для совместного проживания, и классическим характером старого здания. Квартира была отремонтирована по высоким стандартам в 2023 году: Была обновлена электрика, проложены новые трубы отопления, стены и потолки были заново оштукатурены и покрашены. Высококачественный паркетный пол из немецкого дуба и крупноформатная итальянская плитка подчеркивают современную привлекательность. Обстановку дополняют современная ванная комната с тропическим душем, новая кухня и изготовленная на заказ кровать-чердак из натурального дерева с огромным количеством встроенных мест для хранения.

Две хорошо спроектированные комнаты с отдельным доступом предлагают гибкие варианты использования в качестве жилых, спальных или рабочих зон и делают квартиру интересной как для семейных пар, так и для совместного проживания.

Отдельная кухня оборудована встроенным кухонным гарнитуром и функционально вписывается в концепцию гостиной. Дополнительное пространство для хранения создано во входной зоне, где есть место для гардеробной. Частично меблированная передача позволяет без проблем заселиться в квартиру, оставляя место для индивидуального дизайна.

Предложение дополняет подвальное помещение со встроенными стеллажами.

Оборудование


    • Частичная меблировка со вкусом
    • Гардеробная в прихожей
    • Кухня со всеми необходимыми электроприборами, включая стиральную машину с сушилкой
    • Обеденный стол со стульями в гостиной
    • Гостиная с 3-местным диваном и комодом
    • Спальня с дизайнерской двухъярусной кроватью и встроенным рабочим местом
    • Просторный гардероб
    • Современная ванная комната с дневным светом и тропическим душем
    • Крупноформатная итальянская плитка в ванной комнате
    • Высококачественный дубовый паркетный пол
    • Звуковая система Bose
    • Отопление от газового котла, централизованное отопление в 2035 году
    • Дополнительное место для хранения в подвале

    Квартира продается частично меблированной. Представленная мебель является частью обстановки и включена в стоимость покупки.

    Расположение


    Лейпартштрассе находится в самом центре Sendling. Расположенный к юго-западу от Мюнхена, этот район особенно популярен благодаря своей идиллической и семейной атмосфере, зеленым окрестностям и близости к реке Изар и центру города. Район, отличающийся своей природой, особенно известен благодаря мюнхенскому зоопарку Хеллабрунн и обширным зеленым зонам вдоль берегов реки Изар, включая популярную рекреационную зону Флаухер. Расположенные неподалеку Вестпарк и парк Sendling, который находится прямо у порога, также идеально подходят для прогулок и отдыха. Дополнительные возможности для отдыха предлагают центр скалолазания и боулдеринга, плавательный бассейн Südbad и гольф-клуб, расположенный недалеко от Изара.

    Станция скоростной железной дороги Mittersendling, расположенная всего в 4 минутах ходьбы от отеля, обеспечивает отличное сообщение с сетью общественного транспорта, а значит, до центра Мюнхена можно добраться всего за несколько минут. До мюнхенской площади Мариенплац можно дойти примерно за 15 минут. До автобусных маршрутов 53 и 134 можно дойти пешком менее чем за 5 минут. Автобусный маршрут 53 проходит через Роткройцплац и заканчивается в Schwabing на Münchner Freiheit. Маршрут 134 всего за 17 минут доставит вас на крупнейшую ярмарочную площадь Мюнхена - Терезиенвизе. Всего в 9 минутах ходьбы от отеля находится "Харрас", самый важный районный центр в самом сердце Sendling и один из важнейших транспортных узлов Мюнхена. Здесь вы можете отдохнуть на просторных площадках для отдыха, у фонтана или под тенистыми деревьями в окружении архитектурно впечатляющих фасадов, построенных в стиле модерн и неоренессанс. Вокруг Харраса расположено множество модных ресторанов и магазинов. Во время Адвента здесь проводится рождественский базар.

    В шаговой доступности находятся магазины товаров повседневного спроса, супермаркеты, магазины экологически чистых продуктов и лекарств, аптеки, врачи и рестораны. Еженедельный рынок Sendling в Харрасе и уникальный паб "Augustiner Schützengarten" дополняют широкий спектр предложений в непосредственной близости от отеля. Детские сады, ясли и начальные школы находятся в непосредственной близости от дома. До средних школ, таких как гимназия Данте или Кленце, также можно легко добраться на общественном транспорте или пешком за 15 минут.

    Добро пожаловать в Sendling!

    Информация об энергии


    Тип отопления:
    Газовое отопление
    Класс энергоэффективности:
    F
    Значение энергетической характеристики:
    185,6 kWh/(m²*a)
    Источник энергии:
    Газ
    Тип сертификата энергетической эффективности:
    Сертификат энергопотребления
    Год постройки:
    1900

    Прочее


    Частично меблированная квартира готова к заселению. Последняя арендная плата составляла € 1 750 (включая коммунальные услуги, электричество и интернет по фиксированной ставке). Квартира идеально подходит для инвестиций в капитал или для проживания.

    Компания Mr. Lodge, являющаяся ведущим агентством по временной аренде меблированных квартир, рада предоставить новым владельцам или инвесторам консультации, услуги по аренде и недвижимости.

    Mr. Lodge предлагает эту квартиру на условиях единоличного мандата.

    Пожалуйста, обратите внимание, что цифровая экспозиция предназначена для первоначального обзора и что все детали основаны на информации, предоставленной владельцем или клиентом, и мы не несем за это никакой ответственности.

    Перевод: DeepL

    Сделать запрос


    Mr. Lodge GmbH обрабатывает Ваши персональные данные в соответствии с аявлением о конфиденциальности

    Cookie notice
    This website uses cookies to personalize content, customize and measure advertising, and provide a safe experience. By clicking the "Allow all and continue" button, you consent to the collection of data via cookies.
    Пожалуйста, активируйте cookies в настройках вашего браузера!