контактное лицо
Др. Корнелия Коронакис
Др. Корнелия Коронакис
Консультант по продаже жилой недвижимости
+49 89 340 823-546
Количество комнат
1,5
Жилая площадь ок.
57 m²
Покупная цена
€ 699 000,-
Комиссия
2,975% с учетом НДС
Расположение
80639 München

FRIENDS TOWER - Lifestyle living - сдается в аренду на ограниченный срок


Номер предложения :
70313
Тип объекта:
Apartment
Жилая площадь ок.:
57 m²
Год постройки:
2016
Коммунальные платежи:
489 €
Состояние жилья:
в хорошем состоянии
Лифт:
Есть.
Ванные комнаты:
1
Гостевой туалет:
Есть.
Подвал:
Есть.
Встроенная кухня:
Есть.
Этаж:
5
Напольное покрытие:
паркет, плитка

Маклерская комиссия

Комиссия покупателя: 2,975%, включая 19% НДС.

Топ-хайлайты


  • Светлая квартира с южной ориентацией - Высота потолков около 2,80 м - Уникальная концепция жилого пространства Кухня: - Встроенная кухня с высококачественной отделкой - Столярные работы компании Holzrausch - Вытяжка, электрическая духовка, индукционная плита, холодильник, посудомоечная машина Гостиная/столовая: - Телевизор с плоским экраном
  • Отдельная спальная зона для спокойного отдыха - Панорамные окна с тройным изоляционным и звукоизоляционным остеклением и электрической системой затенения - Паркет и полы с подогревом для комфортного микроклимата - Стирально-сушильная машина Ванная комната: - Эксклюзивный дизайн ванной комнаты с душевой кабиной и отдельным туалетом для гостей
  • Терраса на крыше на 15-м этаже с потрясающим 360°-видом на Мюнхен и Альпы - Фитнес-зона - Кухонная зона, которую можно забронировать для вечеринок с друзьями - Большие закрытые помещения для хранения велосипедов

Описание


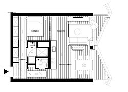
Стильная 1,5-комнатная квартира с окнами на юг, расположенная на 5-м этаже FRIENDS TOWERS, предлагает современную, светлую планировку площадью около 57 м². Высококачественная кухня от Schreiner органично вписывается в гостиную и столовую, а спальная зона, отделенная занавесками, обеспечивает уединение. Большие панорамные окна с тройным изоляционным остеклением и электрическая система затенения обеспечивают много дневного света и приятный микроклимат в помещении. Элегантные детали, такие как паркетный пол, полы с подогревом и стильная ванная комната, дополняют интерьер. Высокие потолки высотой около 2,80 метра подчеркивают ощущение простора. Кроме того, в подвале есть практичная кладовая.

FRIENDS TOWER предлагает эксклюзивные общие помещения, такие как терраса на крыше с видом на Альпы, фитнес-зона и кухня-лаундж для частных мероприятий. Консьерж-сервис обеспечивает дополнительный комфорт. Эта квартира идеально подходит для тех, кто ищет необычное жилье в Мюнхене.

Ежемесячный сбор за парковочное место в настоящее время составляет 59,00 €. Стоимость квартиры 699 000 € + стоимость отдельного парковочного места 40 000 € = всего 739 000 €.

Оборудование



    Комфорт и стиль жизни в FRIENDS TOWER:
    • Помещение для хранения вещей в подвале - Консьерж-сервис в фойе с приемом посылок, услугой по стирке рубашек и другими услугами - Возможен высокоскоростной интернет со скоростью 1000 Мбит Вся мебель, включая встроенную кухню и оборудование, такое как диван, телевизор, столовые приборы и многое другое, включены в стоимость покупки. Подробный список инвентаря будет предоставлен при покупке.

    Расположение


    Neuhausen-Nymphenburg является одним из самых престижных жилых районов Мюнхена, сочетающим в себе центральное расположение и много зелени. Район впечатляет великолепным замком Nymphenburg и его парками, а также оживленной атмосферой вокруг площади Роткреуцплац. Предлагаемая недвижимость расположена прямо у Хиршгартен, популярной зоны отдыха.

    Инфраструктура здесь превосходная: в близлежащем Hirschgarten Forum находятся супермаркеты, биомаркет, аптека, химчистка, почтовое отделение и рестораны. Медицинский центр обеспечивает оптимальное медицинское обслуживание. На улице Nymphenburg Straße есть множество магазинов, таких как Feinkost Käfer, бутики, кафе и высококлассные рестораны.

    FRIENDS Tower имеет отличное транспортное сообщение: станция S-Bahn «Hirschgarten» (основная линия) предлагает прямое сообщение с аэропортом, а трамвайные линии 16 и 17 обеспечивают дополнительный комфорт. До главного вокзала можно доехать за 5 минут, до Мариенплац — за 8 минут. Миттлерренд обеспечивает быстрый доступ к автомагистралям.

    В окрестностях есть множество возможностей для досуга: ESV предлагает широкую спортивную программу, а Body & Soul Center приглашает отдохнуть на скалодроме, в 25-метровом спортивном бассейне и оздоровительном центре. Зеленые оазисы, такие как Английский сад, парк Nymphenburg, Hirschgarten и Олимпийский парк, предлагают отдых и множество возможностей для досуга.

    Информация об энергии


    Тип отопления:
    пол с подогревом
    Класс энергоэффективности:
    B
    Значение энергетической характеристики:
    60 kWh/(m²*a)
    Источник энергии:
    централизованное отопление
    Тип сертификата энергетической эффективности:
    Сертификат энергопотребления
    Год постройки:
    2016

    Прочее


    В настоящее время квартира сдана в аренду по цене 2390 евро/месяц (включая коммунальные расходы, электроэнергию и безлимитный интернет) до 28.02.2026 включительно. Она идеально подходит для инвестиций или для собственного проживания. Мы будем рады ответить на ваши вопросы в ходе личной беседы.

    Как ведущее агентство по временному проживанию, Mr. Lodge также готово предоставить новым владельцам или инвесторам консультации, услуги по аренде и другие услуги, связанные с недвижимостью. Mr. Lodge предлагает эту недвижимость на эксклюзивной основе.

    Обращаем ваше внимание, что цифровой экспозит предназначен для первоначального ознакомления и что все данные основаны на информации, предоставленной владельцем или заказчиком, и мы не несем за них ответственности.

    Перевод: DeepL

    Сделать запрос


    Mr. Lodge GmbH обрабатывает Ваши персональные данные в соответствии с аявлением о конфиденциальности

    Cookie notice
    This website uses cookies to personalize content, customize and measure advertising, and provide a safe experience. By clicking the "Allow all and continue" button, you consent to the collection of data via cookies.
    Пожалуйста, активируйте cookies в настройках вашего браузера!