Меблированная квартира в Harlaching
Оснащение
Этаж:
1-й с лифтом - без лифта
Год постройки:
1987
Комнаты:
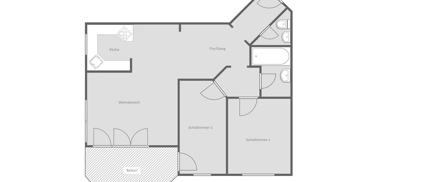
Гостиная/столовая с диваном и обеденный гарнитур
1-я спальная комната с двухспальной кроватью 180 x 200 см
2-я спальная комната с двухспальной кроватью 160 x 200 см
ванная комната с ванной
отдельный туалет
1-я спальная комната с двухспальной кроватью 180 x 200 см
2-я спальная комната с двухспальной кроватью 160 x 200 см
ванная комната с ванной
отдельный туалет
Покрытие пола:
Кафельный пол
Меблировка:
Смешанная
Кухня:
кухня с выходом в гостиную, с окном, комбинация холодильника и морозильной камеры, посудомоечная машина, стеклокерамическая варочная поверхность, электрический духовой шкаф, кухонная вытяжка, электрический чайник, тостер, Капсульная кофеварка , c посудой
Уточнение оснащения:
Собственная комбинация из стиральной машины и машины для сушки белья в подвале
Два телевизора Smart TV (с возможностью подключения к Интернету)
вкл. постельное белье, полотенца и фен
пылесос, гладильная доска, утюг
Два телевизора Smart TV (с возможностью подключения к Интернету)
вкл. постельное белье, полотенца и фен
пылесос, гладильная доска, утюг
Интернет:
WiFi
безлимитный тариф на интернет (скорость до 500 Mbit/s)
стоимость включена в арендную плату
безлимитный тариф на интернет (скорость до 500 Mbit/s)
стоимость включена в арендную плату
Особенности:
Балкон
подвал
подвал
Парковка:
Подземный гараж (отдельное место) - Подробнее на тему: Парковка в Мюнхене
Стоимость включена в аренду
Стоимость включена в аренду
Информация по ценам:
Включено: коммунальные платежи, электричество, плата за отопление, вода, интернет, подземный гараж (отдельное место)
Залог:
2 месячные арендные платы
Взнос за телевидение и радиовещание:
Взнос за телевидение и радиовещание публично-правовых теле/радиоканалов. Ежемесячный взнос составляет на данный момент 18,36 €/месяц, арендатор должен оплачивать его непосредственно ARD ZDF Deutschlandradio, Beitragsservice. Этот взнос не входит в арендную плату, если не указано иначе. --- Без русского телевидения; арендатор при желании может самостоятельно получить информацию о русских каналах здесь: further information
Будет выдано подтверждение арендодателя/регистрация проживания (Wohnungsgeberbestätigung)
Если вы приехали в Мюнхен недавно, то должны зарегистрироваться в регистрационном бюро в течение 2 недель после переезда. Для этого необходимо подтверждение владельца жилья.
Местоположение квартиры
элитный район, недалеко от реки Изар, недалеко от Perlacher Forst
Общественный транспорт
окружение
München Harlaching
Магазины:
аптека, булочная, магазин бытовой химии, мясной магазин, овощной магазин, супермаркет
Рестораны и бары:
рестораны, пиццерии, кафе, пивные сады
Энергетический паспорт:
год строительства: 1987
тип энергетического паспорта: Энергетический паспорт, рассчитанный на фактическом энергопотреблении
Основные источники энергии: Газовое отопление
класс энергоэффективности: D
Показатель расхода энергии: 122,10 kWh/(m²*a)
тип энергетического паспорта: Энергетический паспорт, рассчитанный на фактическом энергопотреблении
Основные источники энергии: Газовое отопление
класс энергоэффективности: D
Показатель расхода энергии: 122,10 kWh/(m²*a)
