Тихий и зеленый жилой район у канала Nymphenburg

Gerner Straße
80638 München
ID 13111
€ 2.500,-
вкл.: коммунальные платежи, электричество, Расходы на отопление и горячую воду, интернет;
опционально: гараж

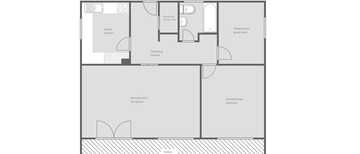
2.5 комнатная
ок. 84 м²
1-й этаж
Сдаётся с
01.04.2026 на 6-36 месяцев
Минимальный период аренды
6 месяцев
количество человек
подходит для 3 человек
Плата за обслуживание
Нет
Ограничения
только некурящим, без домашних животных

Видеотур

Просто зайдите на сайт
и удобно осмотрите свой новый дом из любого места.

Видео
Эта квартира была лично сфотографирована и осмотрена нами.

Оснащение

Интернет
Телевизор
пылесос
Стиральная машина
Машина для сушки белья
Посудомоечная машина
полотенца
постельное бельё
Фен
утюг
подвальное помещение
Гараж
Лифт
Балкон
Терраса

Информация

этаж
1-й этаж - без лифта
Год постройки
1964
Комнаты
гостиная/столовая с обеденным уголком
спальная комната с кроватью Boxspring 180 x 200 см
гостевая комната-кабинет
ванная комната с ванной
Покрытие пола
паркет, кафельный пол
Меблировка
смешанная, красивая и выполненная в светлых тонах
Кухня
встроенная кухня, с окном, холодильник с морозильной камерой, индукционная варочная поверхность, электрический духовой шкаф, посудомоечная машина, кухонная вытяжка, электрический чайник, тостер, кофемашина, c посудой
Уточнение оснащения
платная стиральная машина в подвале
платная машина для сушки белья в подвале
телевизор с плоским экраном
вкл. постельное белье, полотенца и фен
пылесос, гладильная доска, утюг
Интернет
WiFi
безлимитный тариф на интернет (скорость до 500 Mbit/s)
стоимость включена в арендную плату
Особенности
очень красивый большой балкон, выходящий на юг
сад для совместного пользования жильцами
открытый общественный бассейн
письменный стол, пианино
Парковка
подземный гараж (отдельное место) опционально - Подробнее на тему: Парковка в Мюнхене
стоимость 100,- € в месяц
стоимость не включена в аренду
Информация по ценам
включено: коммунальные платежи, электричество, Расходы на отопление и горячую воду, интернет
опционально: подземный гараж (отдельное место) 100,- €/ месяц
залог
2 месячные арендные платы
Взнос за телевидение и радиовещание
взнос за телевидение и радиовещание публично-правовых теле/радиоканалов. Ежемесячный взнос составляет на данный момент 18,36 €/месяц, арендатор должен оплачивать его непосредственно ARD ZDF Deutschlandradio, Beitragsservice. Этот взнос не входит в арендную плату, если не указано иначе. --- Без русского телевидения; арендатор при желании может самостоятельно получить информацию о русских каналах здесь: further information
Энергетический паспорт
год строительства: 1964
тип энергетического паспорта: Энергетический паспорт, рассчитанный на фактическом энергопотреблении
Основные источники энергии: Жидкое топливо
класс энергоэффективности: F
Показатель расхода энергии: 180,00 kWh/(m²*a)
Olivera Tomic

Olivera Tomic

Консультант

Еще не нашли подходящую квартиру?

Наша команда по аренде будет рада помочь вам в поиске. Просто позвоните нам по телефону +49 89 3408 230 или заполните форму запроса. Мы свяжемся с вами в кратчайшие сроки. Кстати, у нас также возможны встречи по субботам.

Задать поисковый запрос

Местоположение квартиры

Gerner Straße

München Nymphenburg

  • элитный район
  • недалеко от дворцового парка Нюмфенбург (Nymphenburg), Недалеко от канала Nymphenburg
  • очень тихо
  • ок. 4,7 km к северо-западу от центра Мюнхена
Подробнее об окрестностях
метро
Номер линии U1 и U7, Остановка Gern (10 минут пешком)
трамвай
Номер линии 12, Остановка Renatastraße (5 минут пешком)
автобус
Номер линии 144, Остановка Hubertusbrunnen (5 минут пешком)

Подобные квартиры

мансардная квартира с 2.5 комнатами | Мюнхен-Moosach | 13292
Видео
сейчас на 6-15 месяцев
2.5 комнатная
72 м²
Мюнхен-Moosach
1,990
€/месяц
квартира с 2.5 комнатами | Мюнхен-Moosach | 12918
Видео
01.04.2026 на 6-24 месяцев
2.5 комнатная
86 м²
Мюнхен-Moosach
2,250
€/месяц
квартира с 2 комнатами | Мюнхен-Nymphenburg | 10849
Видео
сейчас на 6-24 месяцев
2 комнатная
67 м²
Мюнхен-Nymphenburg
3,000
€/месяц
квартира с 3 комнатами | Мюнхен-Nymphenburg | 14770
Видео
сейчас на 6-24 месяцев
3 комнатная
90 м²
Мюнхен-Nymphenburg
2,990
€/месяц
мансардная квартира с 3.5 комнатами | Мюнхен-Nymphenburg | 14775
Видео
сейчас на 6-24 месяцев
3.5 комнатная
120 м²
Мюнхен-Nymphenburg
3,450
€/месяц

Часто задаваемые вопросы

Наши услуги бесплатны для вас как для арендатора. После подписания договора вы оплачиваете арендодателю ежемесячную арендную плату и единовременный депозит (обычно за два месяца).

Если вы нашли подходящее предложение на нашем сайте или хотите получать от нас подходящие предложения, сначала заполните нашу регистрационную форму. Наши консультанты свяжутся с вами в кратчайшие сроки, чтобы обсудить дальнейшие действия. Мы будем рады организовать встречу для просмотра на месте. После того как вы определитесь с выбором квартиры, мы обсудим это с арендодателем и составим договор аренды, как только вы получите согласие.

Указанный срок аренды является обязательным. Если квартира предлагается, например, на 1 июня, она не может быть арендована раньше - и, как правило, не намного позже. Если желаемый срок аренды отличается от предложенного, сообщите об этом консультанту. Если указана фиксированная дата окончания аренды, срок аренды не может быть продлен. Если указан переменный срок аренды, то при необходимости можно договориться с арендодателем о небольших отклонениях.

Частные компании, сдающие квартиры и дома в Мюнхене, устанавливают минимальный срок аренды в шесть месяцев. Городские власти Мюнхена рассматривают аренду на срок менее шести месяцев как нецелевое использование жилой площади, поэтому квартиры и дома сдаются только через нас на срок не менее шести месяцев и более. С другой стороны, во многих местах коммерческие компании, например, предоставляющие квартиры посуточно, не имеют права сдавать их на срок более шести месяцев. Поэтому мы различаем краткосрочные и долгосрочные предложения. В регионе Tegernsee частным компаниям также разрешено сдавать жилье на более короткие сроки, поэтому мы можем предложить меблированную аренду всего на один месяц.

Если вы хотите провести личный просмотр на месте, пожалуйста, сообщите нам об этом. Если квартира еще арендуется, наши консультанты договорятся о встрече с текущим арендатором. Если квартира уже свободна, то обычно встречи могут быть организованы в кратчайшие сроки. Пожалуйста, обратите внимание, что квартира обычно сдается тому, кто первым берет на себя обязательство. Поэтому не планируйте встречи слишком поздно, так как в противном случае желаемая квартира может быть сдана в аренду за это время.

По запросу вы можете посмотреть наши объекты недвижимости виртуально с помощью видеозвонка. На нашем сайте вы найдете высококачественные фотографии и видео с изображением недвижимости, окрестностей и дополнительную подробную информацию о каждом объекте.

Договор аренды заключается между арендатором и арендодателем. В большинстве случаев договор аренды составляется г-ном Лоджем - по согласованию с арендатором и арендодателем - и направляется на подпись обеим сторонам.

В соответствии с договором аренды квартира должна быть возвращена в профессиональную уборку. Когда арендатор съезжает, проводится коммерческая финальная уборка, которую арендодатель поручает специализированной компании. Расходы рассчитываются по принципу "время и материалы" и обычно ложатся на плечи арендатора. Арендодатель получает счет от клининговой компании и засчитывает расходы в счет депозита. Тщательная предварительная уборка может снизить стоимость коммерческой уборки. Пожалуйста, ознакомьтесь с нашим контрольным списком, чтобы узнать, что входит в окончательную уборку.

Cookie notice
This website uses cookies to personalize content, customize and measure advertising, and provide a safe experience. By clicking the "Allow all and continue" button, you consent to the collection of data via cookies.
Пожалуйста, активируйте cookies в настройках вашего браузера!