Квартира с консьержем, тренажерным залом и террасой на крыше в аренду
Прекрасно меблированная 1,5-комнатная квартира в башне FRIENDS Tower (Tower2) в Nymphenburg рядом с Хиршгартеном. Необычный дизайн новых зданий (строительство завершено в 2016 году) с панорамным остеклением высотой 2,85 м - лишь некоторые из изюминок. Помимо кухни-гостиной площадью 84 м² и фитнес-зала в башне 1, башня 2, в которой расположена предлагаемая квартира, может похвастаться фантастической террасой на крыше площадью 250 м² на 15-м этаже. Служба консьержей (также в башне1 напротив) поможет вам получить посылку или решить другие организационные вопросы.
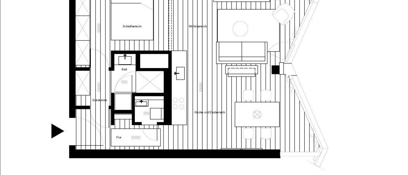
- Оптимальная планировка номера
- Спальная зона со светонепроницаемой шторой и ванной комнатой (доступ возможен как из спальной зоны, так и из коридора)
- Ванная комната с большим тропическим душем
- Отдельный туалет
- Панорамное окно, выходящее на юг
Форум ам Хиршгартен рядом с башнями FRIENDS. Также в нескольких минутах ходьбы находятся супермаркеты, магазин органических продуктов, аптека и фармацевт. Центр культуры и мероприятий Backstage находится примерно в 5 минутах ходьбы.
Оснащение
спальное место с двухспальной кроватью 160 x 200 см
ванная комната с душем
"Умный“ телевизор Smart-TV (с доступом в интернет)
Постельное белье и полотенца включены
пылесос, гладильная доска, утюг
безлимитный тариф на интернет (скорость до 50 Mbit/s)
стоимость включена в арендную плату
общая большая терраса на крыше
панорамный вид вдаль на Альпы
консьерж, помещение для занятий спортом в жилом комплексе, городские электрички S1/S8 в аэропорт
стоимость 120,-€ в месяц
стоимость не включена в аренду
опционально: подземный гараж (отдельное место) 120,- €/ месяц
Общественный транспорт
окружение
München Nymphenburg
Магазины:
аптека, булочная, супермаркет, магазин бытовой химии, овощной магазин, еженедельный рынок
Рестораны и бары:
пивные сады, кафе, пивные, рестораны, кафе
тип энергетического паспорта: Энергетический паспорт, рассчитанный на фактическом энергопотреблении
Основные источники энергии: Централизованное теплоснабжение, ТЭЦ на органическом топливе
класс энергоэффективности: B
Показатель расхода энергии: 60,00 kWh/(m²*a)
