Herzogparksuiten — необыкновенный комфорт проживания

Mauerkircherstraße
81679 München
ID 12678
€ 1.990,-
вкл.: коммунальные платежи, электричество, Расходы на отопление и горячую воду, вода, интернет;
опционально: гараж, Reinigung

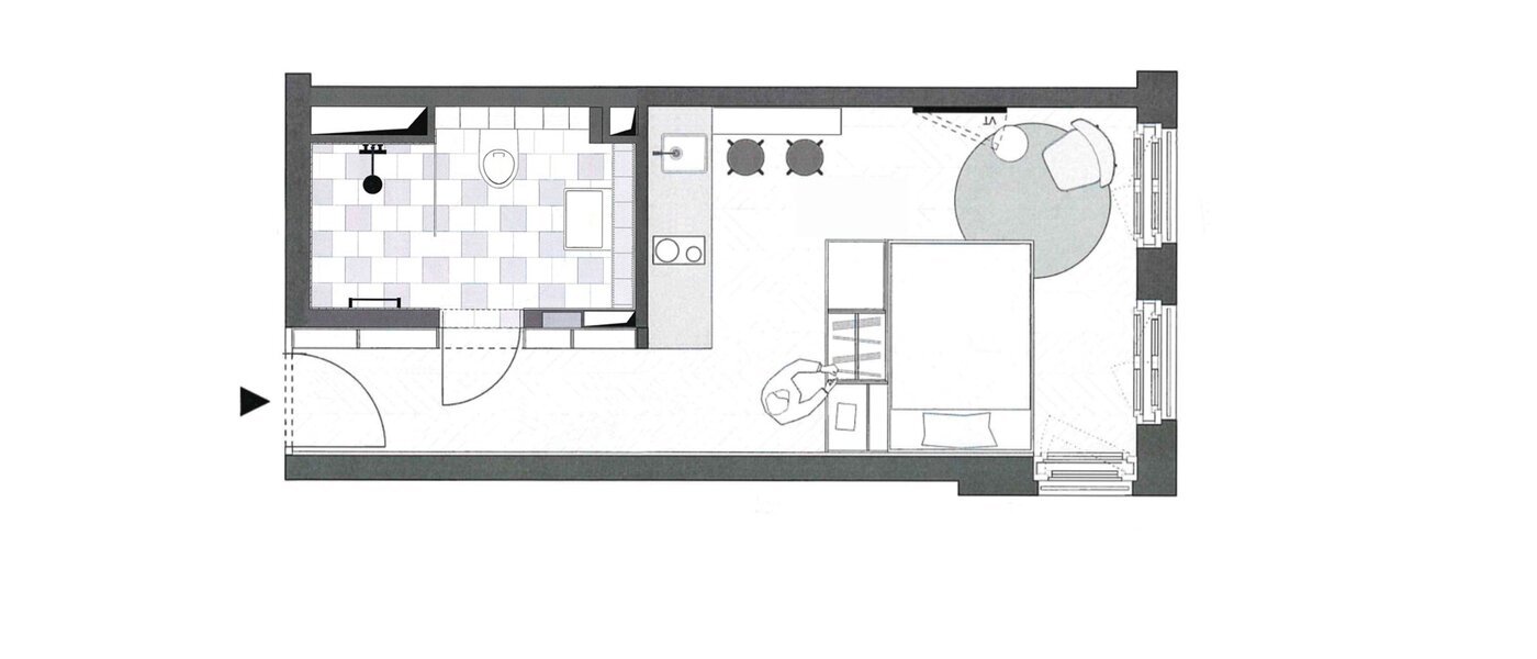
1 комнатная
ок. 30 м²
этаж 1
Сдаётся с
01.05.2026 на 6-24 месяцев
Минимальный период аренды
6 месяцев
количество человек
подходит для 1 человека
Плата за обслуживание
Нет
Ограничения
только некурящим, без домашних животных

Видеотур

Просто зайдите на сайт
и удобно осмотрите свой новый дом из любого места.

Видео

Herzogpark в Мюнхене-Bogenhausen: величественная архитектура, благородная история.

Окруженный старыми деревьями, расположенный между рекой Изар, улицами Монтгелас и Oberföhring. На фоне этого пейзажа мы предлагаем вам необыкновенное удовольствие от проживания в апартаментах Herzogpark. Мы предлагаем продуманные, уникальные апартаменты с 1 и 2 комнатами площадью от 26 до 90 м², спроектированные известным мюнхенским бюро steidle architekten. Построен в бывшем парке французского консульства.
Представительная и просторная прихожая с изысканными деревянными дверями, стенами, отделанными в технике штукатурки, изысканным терраццо и элегантным освещением — современный и элегантный дизайн. Дубовый паркет, промасленный, уложенный елочкой. Подогрев полов во всех комнатах. Высокая звукоизоляция и контролируемая вентиляция жилых помещений. Во всех апартаментах окна от пола до потолка создают особое ощущение света и свободы. Элегантные ванные комнаты со стильной плиткой на стенах и полу, высококачественной современной сантехникой, элегантной встроенной мебелью и многими другими изысканными элементами интерьера.

Очень практично: можно заказать еженедельную уборку и смену постельного белья раз в 14 дней.

Оснащение

Интернет
Телевизор
пылесос
Стиральная машина
Машина для сушки белья
Посудомоечная машина
полотенца
постельное бельё
Фен
утюг
подвальное помещение
Гараж
Лифт
Балкон
Терраса

Информация

Направление
на улицу
этаж
1-й с лифтом - с лифтом
Год постройки
2021
Комнаты
спальня и гостиная совмещены:
двуспальная кровать 160 x 200 см, шкаф, стул
Ванная комната с душевой кабиной на уровне пола
Покрытие пола
паркет типа "Ёлочка", пол с подогревом, пол из керамогранитных плиток
Меблировка
как новая, высококачественная, дизайнерская мебель
Кухня
кухня с выходом в гостиную, стеклокерамическая варочная поверхность, электрический духовой шкаф, холодильник, электрический чайник, эспрессо-машина, обеденный гарнитур, c посудой
Уточнение оснащения
собственная стиральная машина в подвале
телевизор с плоским экраном
Постельное белье и полотенца включены
пылесос, гладильная доска, утюг
Интернет
WiFi
безлимитный тариф на интернет (скорость до 200 Mbit/s)
стоимость включена в арендную плату
Особенности
подвал
Парковка
подземный гараж (отдельное место) опционально - Подробнее на тему: Парковка в Мюнхене
стоимость 160 ,- € в месяц
стоимость не включена в аренду
Информация по ценам
включено: коммунальные платежи, электричество, Расходы на отопление и горячую воду, вода, интернет
опционально: подземный гараж (отдельное место) 160,- €/ месяц; еженедельная уборка
залог
2 месячные арендные платы
Взнос за телевидение и радиовещание
взнос за телевидение и радиовещание публично-правовых теле/радиоканалов. Ежемесячный взнос составляет на данный момент 18,36 €/месяц, арендатор должен оплачивать его непосредственно ARD ZDF Deutschlandradio, Beitragsservice. Этот взнос не входит в арендную плату, если не указано иначе. --- Без русского телевидения; арендатор при желании может самостоятельно получить информацию о русских каналах здесь: further information
Энергетический паспорт
год строительства: 2020
тип энергетического паспорта: Энергетический паспорт, рассчитанный на теоретических энергопотребностях
Основные источники энергии: Централизованное теплоснабжение
класс энергоэффективности: B
показательно расхода энергии: 66,60 kWh/(m²*a)
Джулия Фабиани

Джулия Фабиани

Консультант

Еще не нашли подходящую квартиру?

Наша команда по аренде с удовольствием поможет вам в поиске. Просто заполните наш поисковый запрос, и мы свяжемся с вами в кратчайшие сроки.

Задать поисковый запрос

Местоположение квартиры

Mauerkircherstraße

München Herzogpark

  • элитный район
  • недалеко от реки Изар, недалеко от Английского парка (Englischer Garten)
  • ок. 2,8 km к северо-востоку от центра Мюнхена
Подробнее об окрестностях
автобус
Номер линии 187, Остановка Redwitzstraße (2 минут пешком)
Номер линии 59, Остановка Herzogpark (9 минут пешком)
Номер линии 188 и 189, Остановка Isarring (6 минут пешком)

Подобные квартиры

квартира с 1 комнатная | Мюнхен-Herzogpark | 12567
Видео
01.04.2026 на 6-24 месяцев
1 комнатная
30 м²
Мюнхен-Herzogpark
1,990
€/месяц
квартира с 1 комнатная | Мюнхен-Herzogpark | 12526
Видео
01.04.2026 на 6-24 месяцев
1 комнатная
47 м²
Мюнхен-Herzogpark
3,150
€/месяц
квартира с 1 комнатная | Мюнхен-Herzogpark | 12523
Видео
01.05.2026 на 6-24 месяцев
1 комнатная
35 м²
Мюнхен-Herzogpark
2,280
€/месяц
квартира с 1 комнатная | Мюнхен-Arabellapark | 7848
Видео
01.04.2026 на 6-24 месяцев
1 комнатная
26 м²
Мюнхен-Arabellapark
1,600
€/месяц
двухэтажная квартира-галерея с 1.5 комнатами | Мюнхен-Herzogpark | 12522
Видео
01.03.2026 на 6-24 месяцев
1.5 комнатная
71 м²
Мюнхен-Herzogpark
3,500
€/месяц

Часто задаваемые вопросы

Наши услуги бесплатны для вас как для арендатора. После подписания договора вы выплачиваете арендодателю ежемесячную арендную плату и единовременный депозит (обычно за два месяца).

Если вы нашли подходящее предложение на нашем сайте или хотите получать от нас подходящие предложения, сначала заполните нашу регистрационную форму. Наши консультанты свяжутся с вами в кратчайшие сроки, чтобы обсудить дальнейшие действия. Мы будем рады организовать встречу для просмотра на месте. После того как вы определитесь с выбором квартиры, мы обсудим это с арендодателем и составим договор аренды, как только вы получите согласие.

Указанный срок аренды является обязательным. Если квартира предлагается, например, на 1 июня, она не может быть арендована раньше - и, как правило, не намного позже. Если желаемый срок аренды отличается от предложенного, сообщите об этом консультанту. Если указана фиксированная дата окончания аренды, срок аренды не может быть продлен. Если указан переменный срок аренды, то при необходимости можно договориться с арендодателем о небольших отклонениях.

Частные компании, предоставляющие квартиры и дома в Мюнхене, устанавливают минимальный срок аренды в шесть месяцев. Городские власти Мюнхена считают, что срок аренды менее шести месяцев является нецелевым использованием жилой площади, поэтому мы сдаем квартиры и дома только на срок не менее шести месяцев.<br /> С другой стороны, во многих местах коммерческие поставщики, такие как квартиры с обслуживанием, не имеют права сдавать жилье на срок более шести месяцев. Поэтому мы различаем краткосрочные и долгосрочные предложения.<br /> В регионе Tegernsee частным компаниям также разрешено сдавать жилье на более короткие сроки, поэтому мы можем предложить меблированную аренду всего на один месяц.

Если вы хотите провести личный просмотр на месте, пожалуйста, сообщите нам об этом. Если квартира еще арендуется, наши консультанты договорятся о встрече с текущим арендатором. Если квартира уже свободна, то обычно встречи могут быть организованы в кратчайшие сроки. Пожалуйста, обратите внимание, что квартира обычно сдается тому, кто первым берет на себя обязательство. Поэтому не планируйте встречи слишком поздно, так как в противном случае желаемая квартира может быть сдана в аренду за это время.

По запросу вы можете посмотреть наши объекты недвижимости виртуально с помощью видеозвонка. На нашем сайте вы найдете высококачественные фотографии и видео с изображением недвижимости, окрестностей и дополнительную подробную информацию о каждом объекте.

Договор аренды заключается между арендатором и арендодателем. В большинстве случаев договор аренды составляется г-ном Лоджем - по согласованию с арендатором и арендодателем - и направляется на подпись обеим сторонам.

В соответствии с договором аренды квартира должна быть возвращена в профессиональную уборку. Когда арендатор съезжает, проводится коммерческая финальная уборка, которую арендодатель поручает специализированной компании. Расходы рассчитываются по принципу "время и материалы" и обычно ложатся на плечи арендатора. Арендодатель получает счет от клининговой компании и засчитывает расходы в счет депозита. Тщательная предварительная уборка может снизить стоимость коммерческой уборки. Пожалуйста, ознакомьтесь с нашим контрольным списком, чтобы узнать, что входит в окончательную уборку.

Cookie notice
This website uses cookies to personalize content, customize and measure advertising, and provide a safe experience. By clicking the "Allow all and continue" button, you consent to the collection of data via cookies.
Пожалуйста, активируйте cookies в настройках вашего браузера!